SF-3-255-074

Продам 2-кімнатну квартиру

Розташування: Київ, Дніпровський район, Березняки, Тичини Павла пр-т
2 Кімнат
83 м2
9/24 поверх
Ціна
132 000 $

Інформація

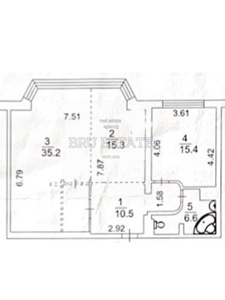
Двокімнатна квартира-студія.
Документам більше трьох років! Паркомісце під одне авто в критому паркінгу як бонус до квартири! Цілодобова охорона! В'їзд через шлагбаум на пульті! Торг! Павла Тычины проспект, 2

132 000 $ вартість об'єкта
1 590 $ ціна за м2
83 м2
2 кімнат
9 Поверх
24 К-ть поверхів

Параметри

центральна Вода:
центральне Опалення:
моноліто-каркас Матеріал стін:

Додатково

Дата оновлення інформації: 15.12.2025 11:37;