SF-3-241-115

Продам 1-кімнатну квартиру

Розташування: Київ, Позняки, Дарницький район, Позняки, Драгоманова вул., 4А
1 Кімнат
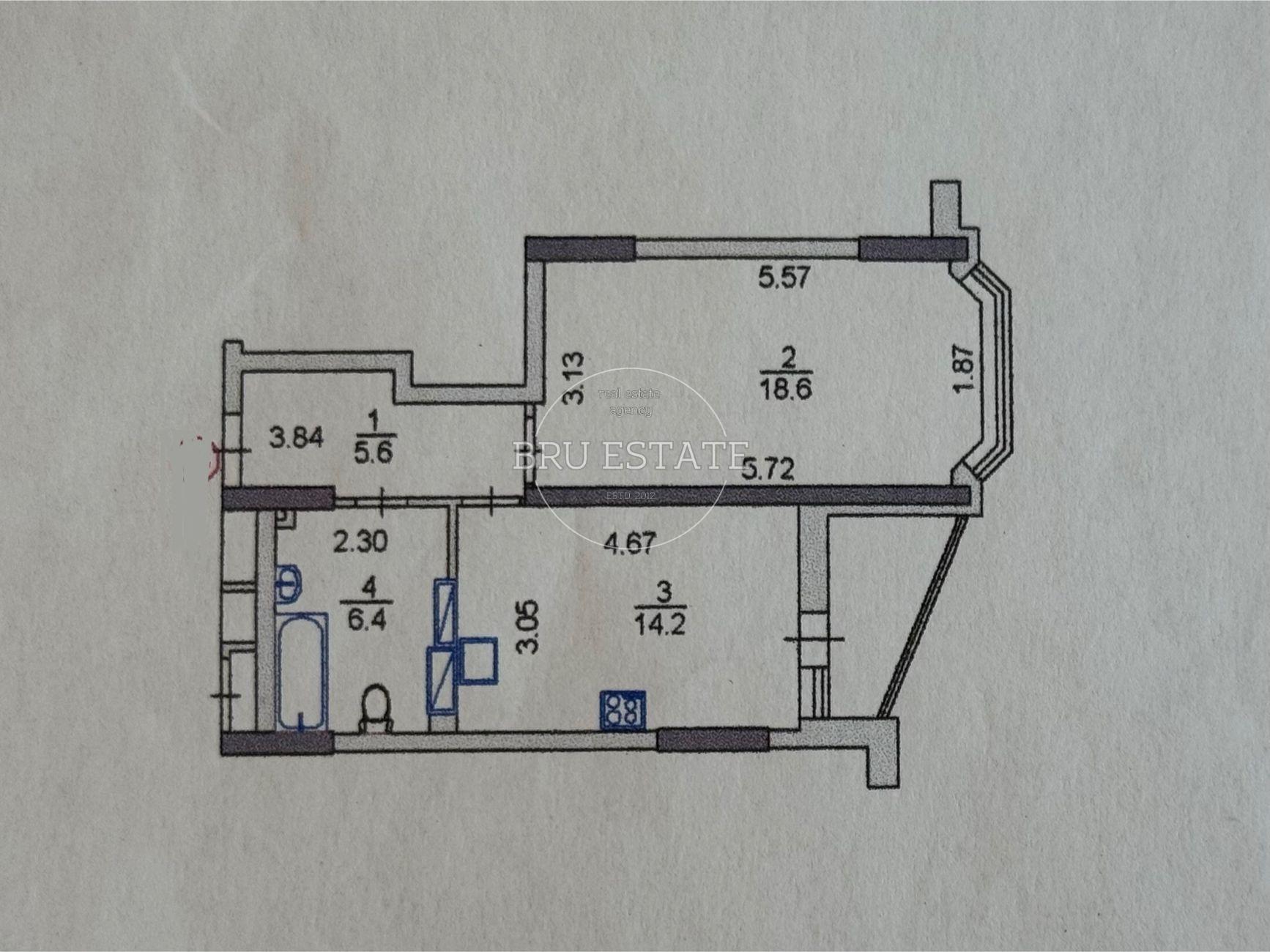
49 м2
5/25 поверх
Ціна
81 000 $
Комісія:
5%

Інформація

Пропонується до продажу простора 1-кімнатна квартира у сучасному будинку (введений в експлуатацію у 2016 році) на Позняках, за адресою: вулиця Драгоманова, 4А.

Квартира розташована на комфортному 5-му поверсі 25-поверхового будинку. Загальна площа – 49 м², простора кухня – 14.5 м².

Будинок обладнаний повноцінним бомбосховищем у підвалі та унікальними внутрішніми сходами, які забезпечують мешканцям "три стіни" (дві з яких монолітні) під час повітряних атак.

Встановлено лічильники на тепло, воду та двозонний лічильник на електрику. Обслуговування ОСББ — найнижча вартість у мікрорайоні (7.25 грн/м).

Квартира чиста, охайна, з житловим, мінімалістичним ремонтом. Уся техніка та меблі на фото залишаються новим власникам (крім дитячого ліжка). Сантехніка та електрика у прекрасному робочому стані.

Кухня площею 14.5 м² облаштована як зона відпочинку, суміжна з кухонною зоною.

Постійно працює два ліфти (вантажний та легковий) + додатковий вантажний для габаритних перевезень.

З вікна (східна сторона) відкривається вид на озеленену територію приватної школи. Поруч озеро «Сонячне», а також відновлений Парк Партизанської Слави (112 Га хвойного лісу) — 20 хвилин пішки.

До метро «Позняки» — 25 хвилин пішки або 10 хвилин маршруткою. До метро «Харківська» — 15 хвилин міським автобусом (зупинки прямо біля будинку).

У пішій доступності ТРЦ «Ашан» (4 хв), «Sport Life» (10 хв), відділення «Нової пошти» (поштомат у будинку) та «Укрпошти».

Поруч Слов’янська, Київська інженерна гімназії, кілька шкіл та дитячих садочків.

Ця квартира — це ідеальний вибір для сучасної родини, яка шукає високу якість життя, максимальну безпеку та економічність у новобудові біля парку та розвиненої інфраструктури.

Бажаєте дізнатися більше про переваги будинку з генератором та бомбосховищем? Телефонуйте!

Інфраструктура

Громадський транспорт: метро - Позняки (20 хв. пішки);
81 000 $ вартість об'єкта
1 653 $ ціна за м2
49 м2
1 кімнат
5 Поверх
25 К-ть поверхів

Параметри

центральна Вода:
центральне Опалення:
холодна вода, гаряча вода Лічильники:

Додатково

Дата оновлення інформації: 17.11.2025 16:41;